Lanlan Residence

380sf Addition & Remodel

Before: 3b2b

After: 4b3b

Santa Clara, California

BACKGROUND

The client approached us due to significant safety concerns caused by structural cracks running through the house, particularly around the front entry. The front door can no longer close properly without applying force. Based on the site investigation and photos, these issues developed after a previous remodel in which a load-bearing wall was removed without professional structural verification.

CONCEPT

The client had two primary goals. First—and most critically—to resolve the existing structural and safety issues. Second, to increase ceiling height and overall livability while minimizing disruption to the existing spaces.

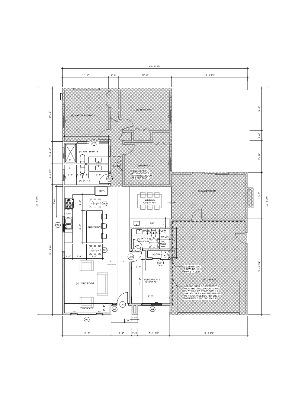
After evaluating the current conditions and project budget, we recommended a front addition rather than expanding toward the rear, preserving a generously sized backyard for the children. Although the 350-square-foot addition is modest, thoughtful space planning allows for the creation of an additional bedroom and bathroom configured as a private suite, separated from the main bedroom area—ideal for in-laws or visiting guests.

The living and kitchen spaces are reconfigured beneath a new vaulted ceiling, creating an open and airy main living area. Upon entry, the home feels immediately more comfortable and welcoming, enhanced by a warm interior color palette. A small intervention delivers a big impact!

Existing Cracks - Safety Concern

Space Re-planning

DEMO PLAN

PROPOSED PLAN

Mood Board

Exploring the Image of the House

Previous
Previous

Foothill Ventures Office